Skip to main content

Yountville Home

Point cloud rendering of a two-story residential house with trees and a palm tree in front

3DVDT executed a residential as-built survey of this 2-story residence for a client living abroad. The need to communicate with on-site contractors remotely was critical for the success of the construction project.

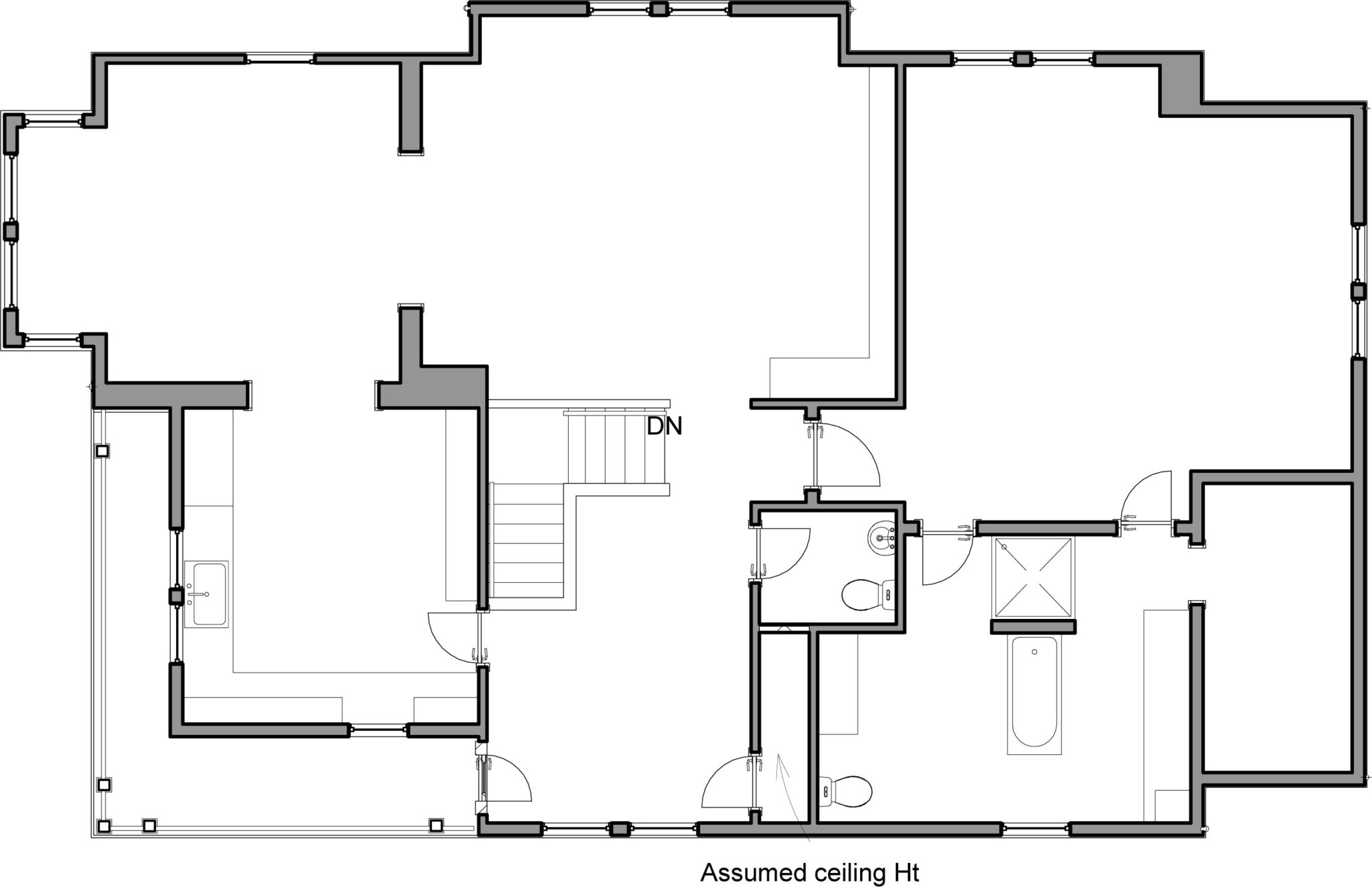
In addition to a 3D BIM model, 2D CAD as-built drawings were produced, including floor plans, elevations and sections.

We delivered a software viewing program of the entire surveyed project. This powerful communication and risk management tool made it possible for virtual interaction with multiple contractors on-site, thus minimizing errors before and during the entire design and construction process.

Point cloud model of a two-story residential building shown from a corner perspective with surrounding trees and a parked car

3D Point Cloud Model

3D BIM model of a two-story residence shown in context with simplified tree volumes and site layout

3D BIM Model

AS-BUILT DRAWINGS

VIRTUAL VIEWING PROGRAM

Dimension and Annotate